Watercrest SCR Apartments

General Infofor Residents
Floor 1Floor 2Floor 3Floor 4VillasClub /h4>

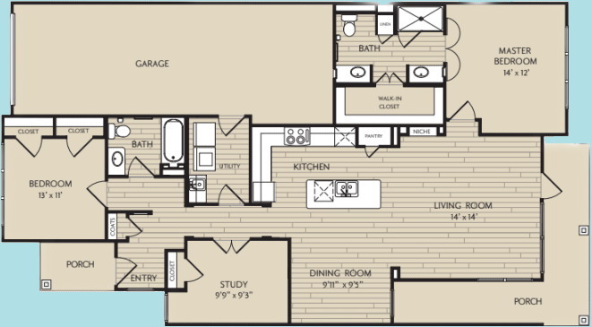
Frio Floor Plan

Diagram of Frio Floor Plan

-- Floor Plans --
BlancoBrazosColoradoComalFrioPedernalesSabineTravisWhitney